初次购买屏蔽式管道离心泵的用户有必要了解屏蔽泵的说明书后才可以正常使用屏蔽泵,正确的操作方法可以延长管道屏蔽泵的使用寿命。
产品概述
屏蔽泵是本公司针对市面上水泵普遍出现的噪音高和振动大的的缺点,新研发的一种低噪音屏蔽泵产品。对于泵与电机进行了一体化设计,泵腔与电机是一个密封整体,去掉了传统离心泵的机械密封结构,进而解决了传统离心泵机械密封损坏而出现的液体泄漏情况,可以使液体介质做到完全没有泄露。去掉了滚动轴承,使用浸渍树脂石墨轴承,摩擦系数会变小,通过自身泵送的流体介质来进行润滑轴承,可以使整机运行时低噪声,管道屏蔽泵适用于工业、城市建筑给水、空调冷热水循环、消防管道增压、远距离输送水等场合使用。屏蔽泵具有结构合理、安装便捷、性能稳定、噪声低振动小、无泄漏和使用寿命长等特点。
产品说明
屏蔽泵的结构如下图所示。屏蔽泵又被称为屏蔽泵和电机一体化结构,屏蔽泵配件主要是由泵体、叶轮、石墨轴承、连接体、转子、定子、屏蔽套、电机壳等构成。屏蔽泵为卧式结构和立式结构,本公司生产的屏蔽泵为立式屏蔽泵结构。进口与出口位于同一水平轴线上,进出口径规格相同可以像阀门一样安装在管路的任何部位上,拆卸与安装比较方便,节省占地面积。屏蔽泵利用联接体和电机构成一体,电机转子定子各有屏蔽套进行密封隔离。轴承使用泵送液体作为润滑剂和冷却液,液体在电机内部进行循环,对电机可以起到冷却作用,对轴承起到润滑作用。屏蔽泵设有底座能直接安装在地基上,也能用隔振垫安装或者带联接板加装隔振器。
型号意义
PBG50R-200(Ⅰ)A(B)(C)
PBG-屏蔽式管道离心泵
50-泵进出口直径(mm)
R-流体类别(普通不标注,热水为R,腐蚀性流体为P)
200-叶轮名义外径(mm)
(Ⅰ)-流量分类
A-叶轮经过一次切割
(B)-叶轮经过二次切割
(C)-叶轮经过三次切割
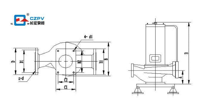
安装尺寸图

安装说明
①安装前应该查看泵组紧固件有没有松动情况,泵体流道内有没有异物堵塞,避免屏蔽泵运行时出现叶轮与泵体损坏。
②安装过程中管路的重量不应该加在屏蔽泵上,需要有各自的支撑体,水泵的进出口应该安装软接头,防止屏蔽泵的连接法兰变形影响性能与寿命。
③假如用来泵送热水或者其他高温液体时,为了确保屏蔽泵的管路不会受热变形,可以不用固定地脚螺栓,管路系统受到热胀冷缩时屏蔽泵会和管路一起移动。
启动、运行与停车
启动、运行
①屏蔽泵灌水排气后再把进口阀打开,可以使液体充分流进泵腔内,将水泵电机顶部排气阀打开,等到水确认没有气泡后再把放气阀关闭。
②出口阀管道关闭可以减少启动电流。
③查看各部件是否正常。
④接通电源点气动来确定正确运行方向,正确的运行方向可以查看出口压力表的压力进行确定。
停车
①将屏蔽泵输出口管路阀门关闭。
②把电源切断再将电机停止运行。
③将进口阀门关闭。
维护保养
①定期记录电源电压的变化与电压的不平衡度。电源电压太高或者太低,三相电压的不平衡导致电流的不平衡很有可能引起电机发热或者其他异常情况。
②定期测量石墨轴承与轴套的间隙,可以保证屏蔽套和转子屏蔽套之间间隙均匀运行可靠。
屏蔽泵说明书由离心泵厂家总结。推荐阅读:屏蔽式管道离心泵的原理及结构


FS型玻璃钢离心泵
PF型强耐腐蚀化工离心泵
IH(IS) 不锈钢化工离心泵
