用来增压的水泵被称为增压泵,立式多级管道增压泵是本企业在结合国内外优秀泵型的基础上,结合用户的使用要求和消防使用标准,进行研发制造的新型多级增压泵。立式多级增压泵适用于高压系统中,冷热清水的循环和增压、高层建筑多台泵并联供水、消防、锅炉给水和冷却水系统以及各种冲洗液的泵送等。增压泵安装时有哪些注意事项?下面进行简要的讲解。
增压泵安装注意事项
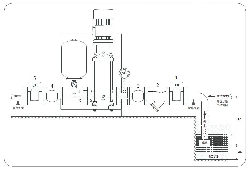
1.增压泵的进口和出口都要装配阀门,方便维护和调试。在液体增压泵的进出口法兰附近安装一个压力表,用来控制增压泵在额定工况内有效运行。排出口如果安装单向阀,应该装在闸阀外面。
2.增压泵安装时需要保持水平状态,否则会发生机械故障。水泵安装过程中要轻拿轻放,否则底板会破裂。
3.增压泵的吸入管路和排出管路系统应该有独立的支撑架,不可以用泵体支撑。
4.增压泵应该安装在室内或者有遮挡的户外场合,做到通风性良好,周围不能有易燃和易爆等腐蚀性液体。
5.管路的螺纹或者法兰接口处必须做到密封性良好,可以防止漏气。
6.增压泵安装时,可以水平或者垂直安装,水流方向必须与泵体上的箭头方向一致,可以安装在离水位较低的位置。
增压泵安装注意事项由水泵厂家总结。


IHF系列氟塑料衬里离心泵
FB全不锈钢单级单吸耐腐蚀离心泵
FSB型氟塑料合金离心泵
